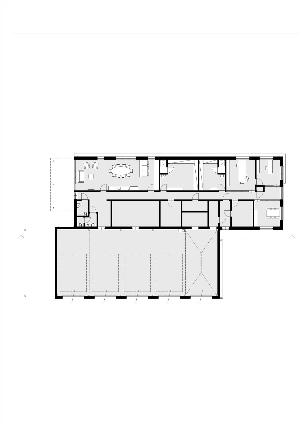
Ambulancepost Heeze-Leende

...

Project Details

Heeze - Leende

Ambulancepost met standplaats voor 5 auto's incl. wasstraat

Opgeleverd 2019

Projectteam

Gemeente Heeze-Leende

Verheijen Smeets Architecten | Beerkens Bouwadvies

Beerkens Bouwadvies

Van Meijl Verhaegh

Poeth Technisch Adviseur

Bouwbedrijf van Gerven

Info
Verheijen-Smeets
Venloseweg 4
5931GT Tegelen
077 3269269
info@vsarch.nl
Socials
lid van BNA